Описание
Фундамент: свайно-ростверковый(стандарт), ленточный, монолитная плита
Стены : газобетон, керамические блоки
Перекрытие: деревянные (стандарт), монолитное перекрытие
Кровля: металлочерепица, мягкая черепица
Проект Zx25 представляет удобный двухэтажный дом в стиле модерн с боковым гаражом. Фасад, отделанный светлым деревом, привлекает внимание изящно оформленной террасой и угловым остеклением первого и второго этажа. Благодаря гармоничной форме и светлой цветовой гамме дом великолепно выглядит на открытых участках.
На первом этаже сформирована дневная зона. Вперёд вынесены гостиная и столовая (они визуально объединены с террасой, на которую предусмотрен выход). Кухня расположена чуть дальше. Все помещения плюс просторный холл образуют прекрасно спланированное пространство для отдыха. Также на первом уровне находятся спальня с ванной, общий санузел и хозяйственное помещение, из которого есть выход в сад.
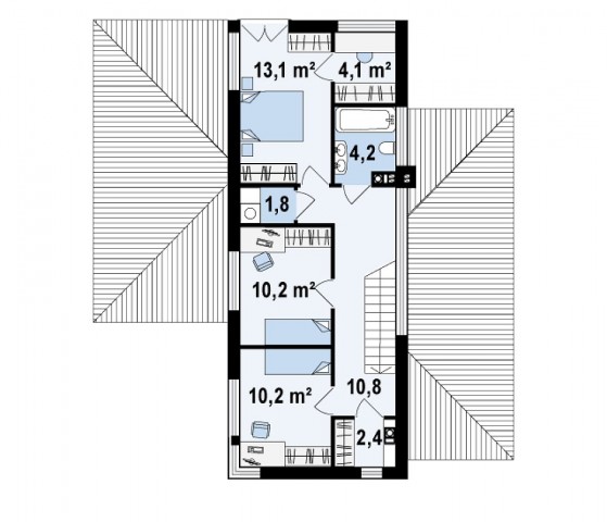
Три спальни, спроектированные на втором этаже, образуют ночную зону. Все комнаты и общая ванная выходят в просторный холл, который освещается через панорамное остекление лестничного марша.
| Общая площадь | 230 м2 |
| Жилая площадь | 158 м2 |
| Этажность | 2 |
| Спальни | 4 |
| Габариты | 12x14 |
- Стены Газобетон "Холодный контур"7,795,850 руб.
- Стены Газобетон "Комфорт"8,279,540 руб.
- Стены Газобетон "Комфорт"+Штукатурка "кароед"9,802,140 руб.
- Стены Газобетон "Комфорт"+облицовка кирпичом11,039,770 руб.
