Описание
Фундамент: свайно-ростверковый (стандарт), ленточный, монолитная плита
Стены: газобетон, керамические блоки
Перекрытие : по деревянным балкам (стандарт), монолитное перекрытие
Кровля :металлочерепица, мягкая черепица
Преимущества проекта Z225:
Компактная простая форма и двускатная крыша способствуют уменьшению затрат на строительные и эксплуатационные расходы.
Простая форма гостиной создает ощущение свободы открытого пространства.
Открытая форма кухни зрительно увеличивает гостиную и способствует ее лучшей освещенности. Хотя ее можно отделить стенной перегородкой при необходимости.
Расположение выхода на террасу рядом с кухней способствует быстрой и удобной организации пикника или обеда на свежем воздухе.
Большие площади остекления обеспечивают хорошую освещенность всех комнат.
Открытая терраса, также, способствует тому, чтобы большее количество дневного света попадало в комнаты.
Дополнительная комната на первом этаже поможет организовать ежедневную домашнюю деятельность проще и удобнее. К тому же в ней предусмотрен выход на террасу.
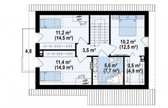
Одна из спален мансарды обустроена собственной гардеробной, две другие имеют выход на балкон.
Хозяйственное помещение рядом с входом удобно для хранения как для садового инвентаря, так и любой домашней техники.
Размещение санузлов один под другим облегчит проведение водопровода и канализации.
| Общая площадь | 174 м2 |
| Жилая площадь | 135 м2 |
| Этажность | 2 |
| Спальни | 4 |
| Габариты | 7.5х10.5 |
- Стены Газобетон "Холодный контур"5,897,730 руб.
- Стены Газобетон "Комфорт"6,263,652 руб.
- Стены Газобетон "Комфорт"+Штукатурка "кароед"7,415,532 руб.
- Стены Газобетон "Комфорт"+облицовка кирпичом8,351,826 руб.
