Задать вопрос эксперту
Оформите заявку на сайте, мы свяжемся с вами в ближайшее время и ответим на все интересующие вопросы
Описание
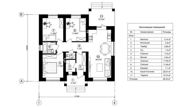
Данный дом полностью соответствует своему названию, а именно переводиться как "Женское Счастье" сочетая в себе небольшой размер и правильную форму дом идеально вписывается даже на небольшие участки . В проекте предусмотрено все что потребуется для комфортной и уютной загородной жизни. Три спальни, два сан узла, котельная, просторная кухня-столовая с выходом на открытую террасу.
Характеристики
| Общая площадь | 120 м2 |
| Жилая площадь | 81 м2 |
| Этажность | 1 |
| Спальни | 3 |
| Габариты | 11.7*10.3*3 |
- Стены Газобетон "Холодный контур"4,079,280 руб.
- Стены Газобетон "Комфорт"4,319,760 руб.
- Стены Газобетон "Комфорт" + Штукатурка "Кароед"5,114,160 руб.
- Стены Газобетон "Комфорт " +Облицовка5,759,880 руб.
Отзывы
Контактная информация
Ваш персональный консультант Татьяна
или оставьте ваш номер, и я вам перезвоню
Отправляя заявку, вы соглашаетесь на обработку персональных данных
Документы
