Задать вопрос эксперту
Оформите заявку на сайте, мы свяжемся с вами в ближайшее время и ответим на все интересующие вопросы
Описание
Этот дом – это воплощение функциональности и стиля. Это не просто набор квадратных метров, это дом, где сбываются мечты о комфорте, уюте и гармонии. Это место, где вы сможете наслаждаться жизнью, окруженные любовью и теплотой своего дома. Он идеально подходит как для молодой семьи, так и для пары, ценящей уют и независимость. Рассмотрите возможность воплощения этой мечты в реальность.
Характеристики
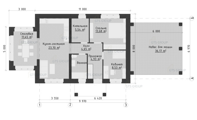
| Общая площадь | 103 м2 |
| Жилая площадь | 43 м2 |
| Этажность | 1 |
- Стены Газобетон "Холодный контур"3,491,082 руб.
- Стены Газобетон "Комфорт"3,697,494 руб.
- Стены Газобетон "Комфорт" + Штукатурка "Кароед"4,389,551 руб.
- Стены Газобетон "Комфорт " +Облицовка4,943,794 руб.
Отзывы
Контактная информация
Ваш персональный консультант Татьяна
или оставьте ваш номер, и я вам перезвоню
Отправляя заявку, вы соглашаетесь на обработку персональных данных
Документы
