Описание
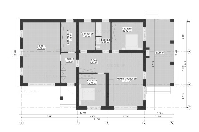
Уникальный компактный дом, который обладает всем необходимым для комфортного проживания. Этот дом имеет свой собственный гараж, где вы можете хранить свой автомобиль или использовать его в качестве дополнительного хранилища.
Внутри дома есть две просторные спальни, где вы и ваша семья сможете отдохнуть и расслабиться после долгого дня.
Просторная гостиная объединена с кухней, где вы можете приготовить вкусные блюда и провести время в кругу своих близких. Выходя на уютную веранду, вы сможете насладиться свежим воздухом и прекрасным видом на окружающую природу. Необходимые вещи и одежда могут быть хранены в большой гардеробной комнате. Котельная обеспечит вас теплом и комфортом в любое время года. Весь дом выполнен в современном стиле, который подчеркивает его элегантность и функциональность. Этот компактный дом идеально подходит для небольшой семьи.
| Общая площадь | 169 м2 |
| Жилая площадь | 131 м2 |
| Этажность | 1 |
- Стены Газобетон "Холодный контур"5,744,986 руб.
- Стены Газобетон "Комфорт"6,083,662 руб.
- Стены Газобетон "Комфорт" + Штукатурка "Кароед"7,202,442 руб.
- Стены Газобетон "Комфорт " +Облицовка8,111,831 руб.
