Описание
Представляем вашему вниманию шикарный дом, где каждая деталь продумана для максимального комфорта и радости проживания. Этот удивительный дом можно расположить в живописном месте, окруженном великолепной природой, что создаст ощущение умиротворения и гармонии.
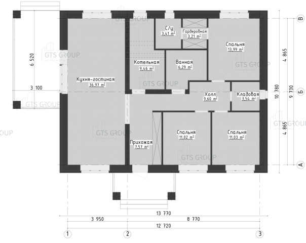
Дом имеет раздельные спальни, позволяющие членам семьи насладиться уединением и персональным пространством. Комфортабельная ванная комната и просторный санузел обеспечивают высокий уровень удобства. А большая, современная котельная гарантирует, что ваш дом всегда будет согрет теплом и уютом.
Изюминкой дома является просторная гостиная, идеально подходящая для семейных посиделок и праздничных торжеств. Через большие окна открывается потрясающий вид на окружающую природу, а выход на веранду позволит вам наслаждаться свежим воздухом и красотой пейзажей.
Приобретая этот дом, вы получаете не только комфортное жилье, но и возможность насладиться экологически чистой средой и живописными ландшафтами. Здесь вы сможете организовывать незабываемые семейные праздники и праздничные события, наполненные радостью и умиротворением.
Не упустите свой шанс стать обладателем этого восхитительного дома, который станет воплощением ваших самых смелых мечтаний о роскошном и уютном жилье в гармонии с природой.
| Общая площадь | 148 м2 |
| Жилая площадь | 116 м2 |
| Этажность | 1 |
| Спальни | 3 |
- Стены Газобетон "Холодный контур"5,016,312 руб.
- Стены Газобетон "Комфорт"5,312,904 руб.
- Стены Газобетон "Комфорт" + Штукатурка "Кароед"6,307,316 руб.
- Стены Газобетон "Комфорт " +Облицовка7,103,704 руб.
