Задать вопрос эксперту
            Оформите заявку на сайте, мы свяжемся с вами в ближайшее время и ответим на все интересующие вопросы
        Описание
Просторный дом — это не всегда два этажа, порой все можно вместить и на одном, если, конечно, позволяет площадь участка.
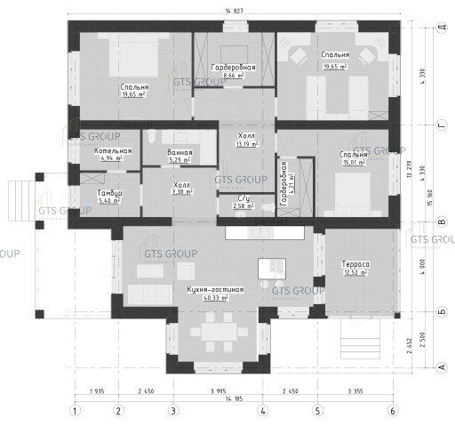
И так перед нами одноэтажный дом с 3 спальнями, двумя раздельными санузлами, огромной гардеробной что является мечтой каждой хранительницы очага , большой Кухней-гостиной  с выходом на террасу,где вы сможете теплыми вечерами коротать время  с чашечкой кофе в руке наблюдая как солнце уходит в закат .
Уют, Комфорт, Гармония это однозначно про проект  
Характеристики
            | Общая площадь | 218 м2 | 
| Жилая площадь | 94 м2 | 
| Этажность | 1 | 
- Стены Газобетон "Холодный контур"7,388,674 руб.
 - Стены Газобетон "Комфорт"7,825,546 руб.
 - Стены Газобетон "Комфорт" + Штукатурка "Кароед"9,290,070 руб.
 - Стены Газобетон "Комфорт " +Облицовка10,463,346 руб.
 
Отзывы
Контактная информация
        
                Ваш персональный консультант Татьяна
                
                
                или оставьте ваш номер, и я вам перезвоню
                
                
                Отправляя заявку, вы соглашаетесь на обработку персональных данных
            Документы
    