Описание
Проект дома для активной семьи
Проект дома, предусматривает комфортное проживание семьи, которая ведет активный образ жизни. В доме достаточно места для работы, отдыха в кругу семьи и приема гостей. Функциональное расположение комнат позволяет прекрасно сочетать все эти аспекты жизни.
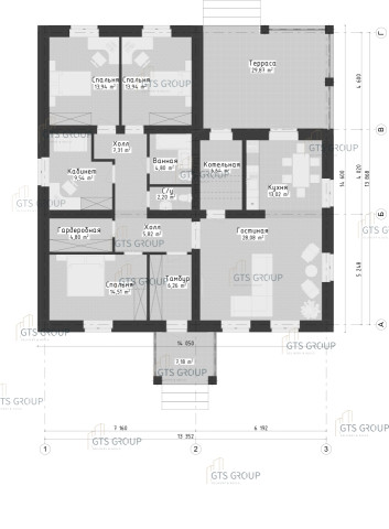
Гостиная - самая большая комната на первом этаже. Ее площадь составляет 28,08 квадратных метров. Это просторное и уютное пространство, в котором достаточно места для приема гостей или отдыха с семьей. Гостиная может быть разделена на две зоны - зону отдыха и зону приема гостей.
Кухня-столовая примыкает к гостиной и имеет площадь 13,02 квадратных метра. Хорошо оборудованная кухня с большим количеством рабочей поверхности и места для хранения вещей. Это идеальный пространство для формального обеденного стола.
Главная спальня - самая большая спальня на втором этаже. Ее площадь составляет 14,51 квадратных метра. В спальне достаточно места для кровати, тумбочек, шкафа и других необходимых предметов мебели. Две другие спальни имеют площадь 13,94 квадратных метра каждая. У них общая ванная комната.
Кабинет площадью 9,54 квадратных метра является идеальным местом для работы дома или учебы. Кабинет может быть оборудован письменным столом, стулом, компьютером и другими необходимыми предметами мебели.
Функциональное расположение комнат позволяет семье комфортно проживать в доме. Например, гостиная и кухня-столовая позволяет семье проводить время вместе, и отделена от зоны спален и кабинета коридором, что обеспечивает тишину и покой для работы или учебы, и комфортный сон.
Эргономика дома также продумана. Например, в гостиной и кухне-столовой достаточно места для свободного перемещения. В спальнях достаточно места для кровати и других необходимых предметов мебели. В кабинете достаточно места для работы или учебы.
| Общая площадь | 205 м2 |
| Жилая площадь | 80 м2 |
| Этажность | 1 |
- Стены Газобетон "Холодный контур"6,968,770 руб.
- Стены Газобетон "Комфорт"7,379,590 руб.
- Стены Газобетон "Комфорт" + Штукатурка "Кароед"8,736,690 руб.
- Стены Газобетон "Комфорт " +Облицовка9,839,795 руб.
