Описание
Компактный дом размером 7 на 9 из газобетонных блоков – это компактное и уютное жилище, идеально подходящее для небольшой семьи или одного человека.
Фасад дома выполнен из газобетонных блоков, которые обладают отличными теплоизоляционными свойствами и обеспечивают надежную защиту от холода и шума. Благодаря этому, внутри дома всегда сохраняется комфортная температура и тишина.
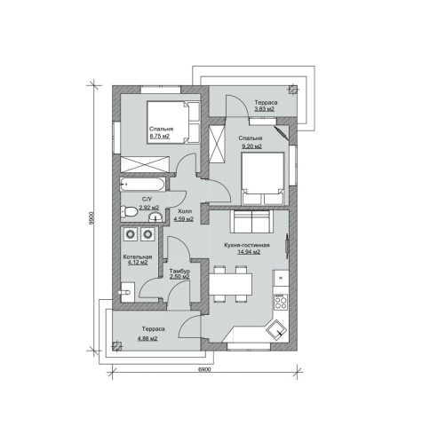
Вход в дом осуществляется через небольшую крыльцо, которое придаёт дому очарование и дополнительное пространство для отдыха на свежем воздухе. Планировка дома предусматривает просторную гостиную, кухню, 2 спальни и ванную комнату. Все комнаты имеют оптимальные размеры, что позволяет использовать пространство максимально эффективно.
Окна дома выполнены из высококачественного стекла, которое пропускает достаточное количество света, создавая светлую и приятную атмосферу внутри помещения. Для обеспечения комфорта и безопасности, дом оснащен системой отопления и вентиляции. Внешний вид дома можно дополнить различными элементами декора, такими как цветочные клумбы, зеленые насаждения или небольшой сад. В целом, компактный дом размером 7 на 9 является практичным и функциональным жилищем, обладающим всеми необходимыми удобствами для комфортной жизни. Размеры дома позволяют разместить его на участках от 4 соток. Может быть использован как дачный вариант, гостевой дом. При желании планировку можем пересогласовать с нашим архитектором
| Общая площадь | 68 м2 |
| Жилая площадь | 47 м2 |
| Этажность | 1 |
- Стены Газобетон "Холодный контур"2,311,592 руб.
- Стены Газобетон "Комфорт"2,447,864 руб.
- Стены Газобетон "Комфорт" + Штукатурка "Кароед"2,898,024 руб.
- Стены Газобетон "Комфорт " +Облицовка3,263,932 руб.
