Задать вопрос эксперту
Оформите заявку на сайте, мы свяжемся с вами в ближайшее время и ответим на все интересующие вопросы
Описание
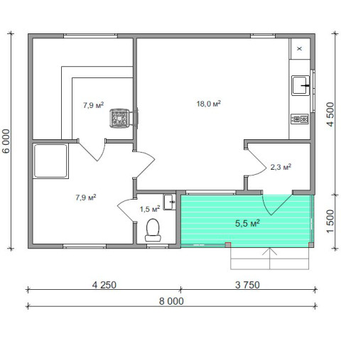
Уютная баня из газобетона общей площадью 43 кв.м. с парной, комнатой отдыха, помывочной, с/у
Характеристики
| Этажность | 1 |
Отзывы
Контактная информация
Ваш персональный консультант Татьяна
или оставьте ваш номер, и я вам перезвоню
Отправляя заявку, вы соглашаетесь на обработку персональных данных
