Описание
Фундамент: свайно-ростверковый (стандарт) / монолитная плита / монолитная лента
Стены: газобетон, керамические блоки
Перекрытие : деревянные перекрытия (стандарт) / монолитное перекрытие
Кровля: металлочерепица, мягкая кровля
Преимущества проекта Zz1:
Сложная конструкция кровли и современный дизайн, сочетающий серую, белую штукатурки и обшивку из дерева, делают строение уникальным, оригинальным и стильным.
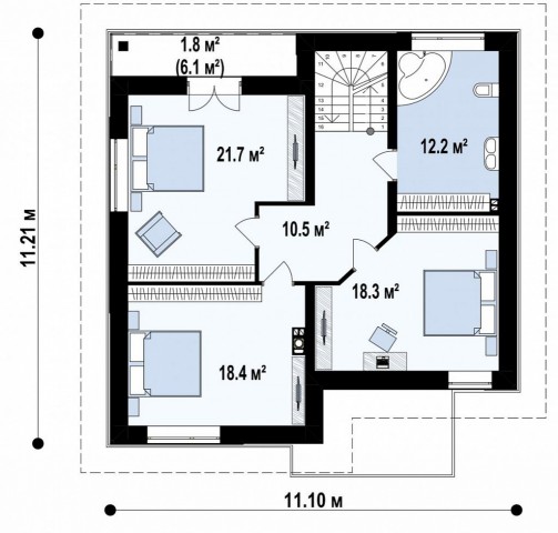
Четкое зонирование пространства и наличие аж 5 спален обеспечивают высочайший комфорт проживания в коттедже.
Панорамные окна обеспечивают наполнение всех помещений достаточным количеством тепла и света, делая комнаты более уютными.
Кухня открытого типа просторная и комфортная, как кухни з современных домах.
Одна из комнат, запроектированных на первом этаже, может служить кабинетом или мастерской для творческих людей.
Люди, ценящие независимость и комфорт, могут без раздумий приобретать проект Zz1.
| Общая площадь | 248 м2 |
| Жилая площадь | 165 м2 |
| Этажность | 2 |
| Спальни | 5 |
- Стены Газобетон "Холодный контур"8,405,960 руб.
- Стены Газобетон "Комфорт"8,927,504 руб.
- Стены Газобетон "Комфорт"+Штукатурка "кароед"10,569,264 руб.
- Стены Газобетон "Комфорт"+облицовка кирпичом11,903,752 руб.
