Описание
Фундамент: свайно-ростверковый(стандарт), монолитная плита, монолитная лента
Стены: газобетон, керамические блоки
Перекрытие : по деревянным балкам (стандарт), монолитное перекрытие
Кровля: металлочерепица, мягкая черепица
Проект Z264 — это компактный, аккуратный и стильный дом с двумя спальнями.
Строгую геометрию линий здания оживляют интересные архитектурные элементы, светлая цветовая гамма подчёркивает европейский стиль.
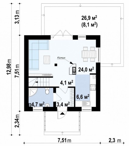
На первом этаже сформирована зона отдыха, в которую входят просторная гостиная с камином, объединённая с большой кухней. Также на первом уровне расположены ванная комната и большая прихожая, в которой отведено место под вместительный шкаф.
Второй этаж полностью отдан под ночную зону. Здесь располагаются две просторные спальни (в одной из них предусмотрено гардеробное помещение, в другой есть балкон), а также большая ванная.
Проект Z264 разработан для тех, кто заинтересован в бюджетном и функциональном доме. Это компактное жильё, в котором каждая деталь подчинена комфорту.
| Общая площадь | 112 м2 |
| Жилая площадь | 76 м2 |
| Этажность | 1 |
| Спальни | 2 |
| Габариты | 7.5х7.5 |
- Стены Газобетон "Холодный контур"3,796,240 руб.
- Стены Газобетон "Комфорт"4,031,776 руб.
- Стены Газобетон "Комфорт"+Штукатурка "кароед"4,773,216 руб.
- Стены Газобетон "Комфорт"+облицовка кирпичом5,375,888 руб.
