Описание
Фундамент: свайно-ростверковый (стандарт), ленточный, монолитная плита
Стены : газобетон, керамические блоки
Перекрытие : по деревянным балкам (стандарт) монолитное перекрытие
Кровля : металлочерепица, мягкая черепица
Преимущества проекта Z217:
Открытая форма кухня зрительно увеличит гостиную и сделает ее светлее.
Открытая терраса способствует лучшему естественному освещению благодаря отсутствию затеняющего навеса.
Расположение окон в гостиной с трех сторон (северной, южной и западной), большие площади остекления гарантируют прекрасное освещение помещения на протяжении всего светового дня.
Большие площади остекления, кроме того, подарят ощущение гармонии внешнего и внутреннего пространства.
Дополнительная комната на первом этаже с собственным выходом на террасу поможет домочадцам удобнее организовать ежедневную деятельность.
Хозяйственное помещение рядом с кухней расположено так, чтобы выполнять еще функцию котельной, и подсобного помещения.
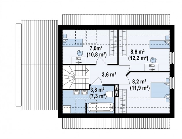
Ванная комната мансарды имеет отдельный отсек для прачечной.
Традиционный архитектурный стиль придает всему строению уютный, домашний характер.
| Общая площадь | 192 м2 |
| Жилая площадь | 123 м2 |
| Этажность | 2 |
| Спальни | 4 |
| Габариты | 7х12.5 |
- Стены Газобетон "Холодный контур"6,507,840 руб.
- Стены Газобетон "Комфорт"6,911,616 руб.
- Стены Газобетон "Комфорт"+Штукатурка "кароед"8,182,656 руб.
- Стены Газобетон "Комфорт"+облицовка кирпичом9,215,808 руб.
